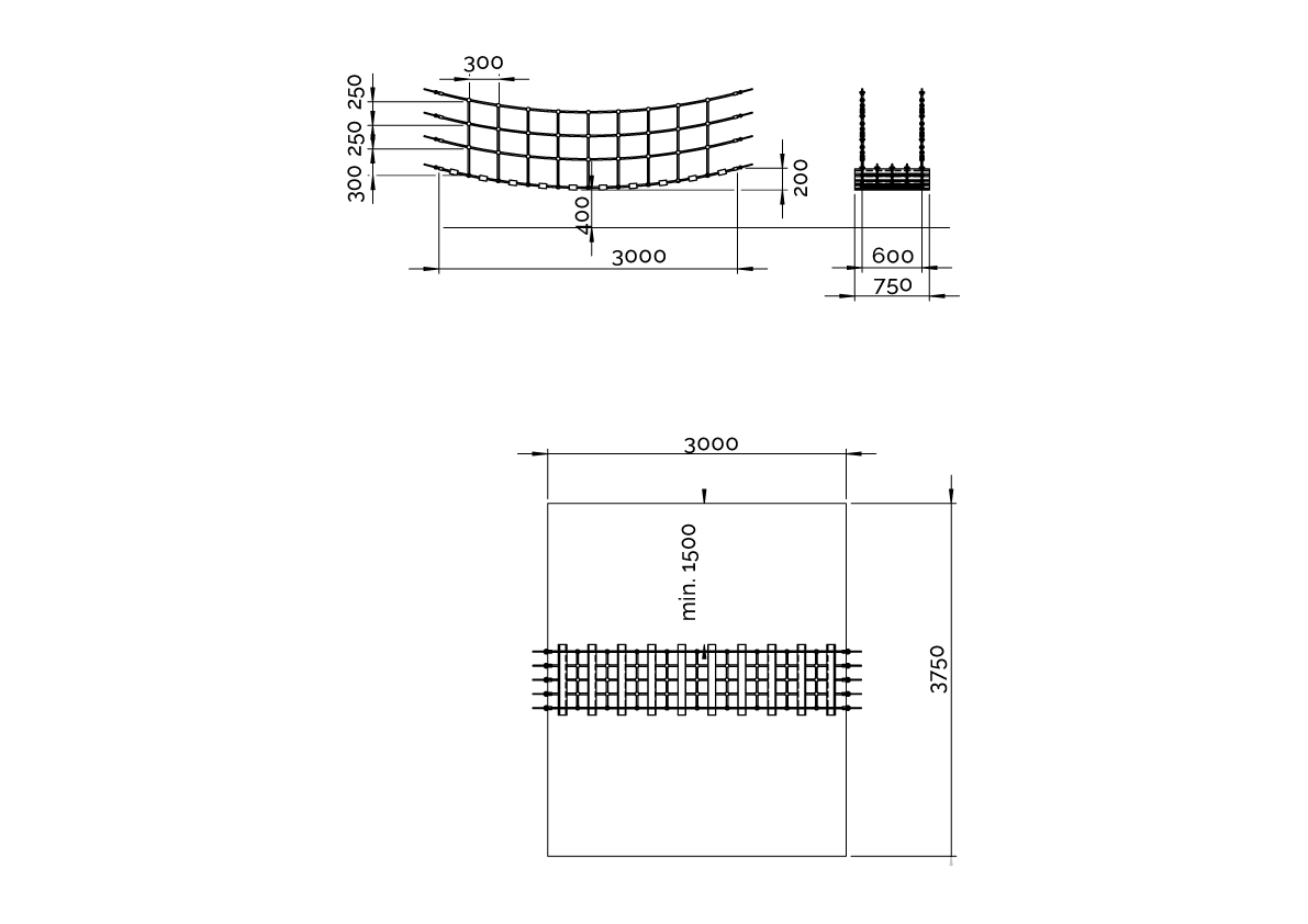
Pont suspendu
Pont suspendu avec échelons en bois, disponible en différentes couleurs et longueurs.
Preis auf Anfrage
Login
Ouvrez un compte client pour enregistrer vos adresses de livraison, consulter vos commandes passées et bien plus encore!
Ouvrir un compte 
					 
					 
					
 
					 
					